
















光明新盘《山湖茗苑》6栋1200套大型花园小区 !地铁口物业,依山傍水!
深圳地铁13号线公明北站2023年底开通,距离本项目500米。
零距离无敌山湖景观,天然氧吧。
五分钟上南光,龙大高速,30分钟车程可达罗湖 福田 南山 宝安机场。
小区共6栋分二期开发,1期已入伙,2期即将竣工,总占地约3万㎡,首推200套,建筑面积15万㎡,容积率3.0。
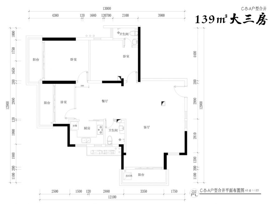
户型方正,实用率高,通风采光优良,可自由组合成90-110-139-157㎡,亦可一层变二层。
楼盘户型:
63㎡二房二厅 3.9米层高 3.6米开间大阳台 买一层得两层变三房或四房
45㎡-49㎡ 一房一厅 3.9米层高 3.6米开间大阳台,买一层得两层变二房或三房
可自由组合成90-110-139-157㎡户型,可变三房或四房或五房!
楼盘价格:均价1.8万/㎡
———— 基础信息 ————
位置:深圳·光明区公明街道西田社区
总占地:约3万㎡
体量: 花园小区共6栋1200套左右 首推3栋200套现房,毛坯交付。总层高:住宅共16层 层间距高4米
项目建筑面积:约15万㎡
容积率:3.0
在售楼栋:一期3号楼
推售楼层:3F-16F
梯户比:现楼3梯12户
车位数:地下两层共656个
管理费:5元/月/㎡ 水4.3每方 电1块
主力户型:45㎡.49㎡. 63㎡.90㎡.
交楼时间:2022年6月份交付
交楼标准:毛坯交付,承重300kg
付款方式:一次性或分期半年免息(分期3-5年)
奢阔6米层高酒店式入户大堂
① 多维交通枢纽 迅捷通达全城距6号线公明广场站站3千米、13号线公明北站500米
3大高快速:南光高速、龙大高速 外环高速
4条地铁线交汇:6号线、13号线公明北站(明年开通)、18号线(2023年开工),轨道26号线(规划中)
2条大动脉:象山大道、民生大道
② 醇熟商圈环伺 所见即为所100米垂钓公园,500米嘉虹购物广场,西田时代购物广场,西田体育公园,市场步行街,西田公园,钜峰桌球俱乐部等生活配套醇熟,吃喝玩乐购,应有尽有。
③ 深圳向北,科学城未来世界瞩目1.【区域价值】粤港澳湾区核心脊梁+大空港一级辐射区+光明科学城一级辐射区深圳北部门户新城,深圳北部发展轴核心,深圳向北,科学城未来世界瞩目,助力“世界一流科学城”打造质量型创新型制造强区、现代化国际化绿色城区。位处广深珠澳与珠三角城市群中心,广深港科技创新走廊中轴,广深珠澳与珠三角1小时生活圈2.在产业方面,这里有深圳市国家级高新技术产业园区,有年产值百亿元以上企业约6家(华星光电、诚威电线、普联、天安云谷、华桥城光明小镇和欧菲光),十亿元以上企业19家,国家级高新技术企业238家,未来规划重点引进战略型新兴产业,打造有规模、形象、特色的现代化高科技园区。
④ 恢宏旧改 城市焕新 资产赋能区域内汇集万科、华润、星河、华侨城等众多知名品牌开发商布局城市更新项目约44个,面积约700万㎡,打造城市转型升级新样本。区域价值潜力将随着开发完善而逐步提升,城市潜能蓄势待发,未来物业升值潜力不可估量。
⑤ 低投资 高收益项目距离6号线公明广场站,地铁13号线、18号线(2023年动工)26号轨道(规划中),汇集的光明城站,距离公明北站,后期延伸至松山湖,形成南山—光明—松山湖的科技快线。罗湖、福田、南山、宝安核心区,而且能为街区提供持续稳定且大量的人流客流,成为商业活力和商业稳定的支撑。人口密集稳定、承租强,项目的高性价比户型,低门槛上车,极具高升值潜力及收益回报率。

















这个您可以放心你好,我看周边环境很好呀,我喜欢钓鱼,到时间买一套天天钓鱼去点赞(5)


已有 28 人领取
折扣优惠将与您的手机号绑定

微信扫一扫,预约更快更方便