















凤岗雁田8栋大型花园社区《深创学苑》样板房盛大开放。
2万㎡社区商业,8栋超500套可售优质房源。
小区内自带2所公里学校(高端幼儿园+九年制学校)
在施工的深惠城际开通,地铁3站深圳北,5站前海。带来更交通的便利。
3.6万㎡开放式block商业街区,包含办公总部,写字楼,新型厂房,汇聚 30万产业人口集聚,带来超高的人流红利。
5梯8户,精装交楼,户户带阳台,通燃气。车位比1:1.4
三梯五户,五梯八户,超高梯户比
户型:
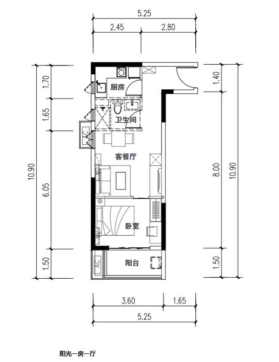
一房32平
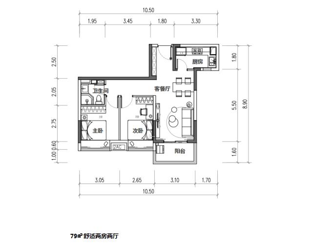
两房79平
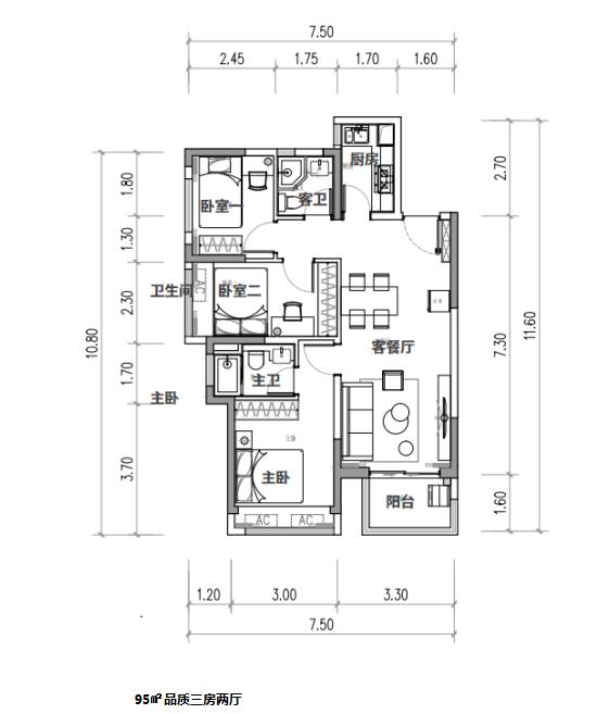
三房95-103平
四房126平
单价:13500元一平左右。
厂房:大红本7000元一平,独立红本10000元一平,在售面积:1200平-4200平。
付款方式:首付3成,贷款10年,轻松置业。签合作建房合同。不用名额。
















你看了核酸了请问你期房还是现房点赞(5)


已有 28 人领取
折扣优惠将与您的手机号绑定

微信扫一扫,预约更快更方便