














东莞厚街寮厦小产权房【维港悦居】推出20套特价房5880元/㎡送装修(20套不限楼层,房号),大福利,居厚街中心,享一城繁华!
楼盘位置图:

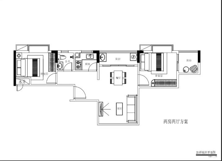
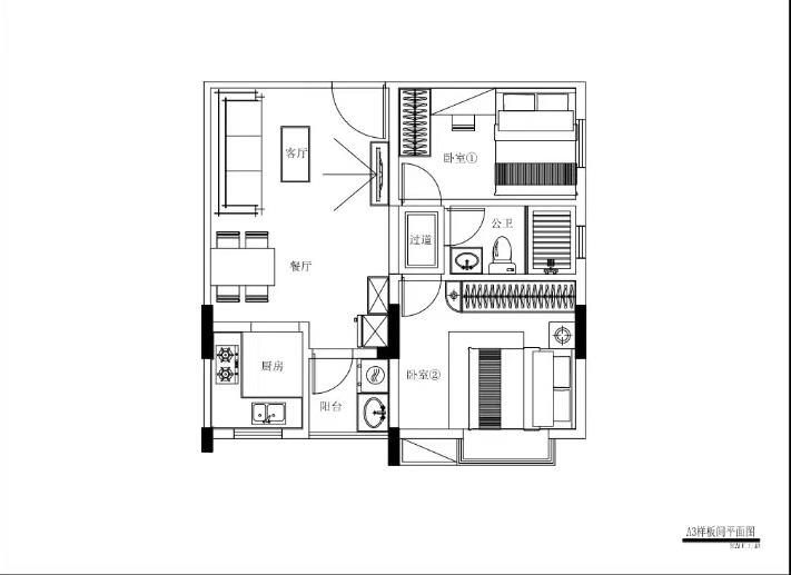
项目户型:
精品两房:69.82-90.41㎡
轻奢三房:94.31-110.97㎡
付款方式:
首付3成,8-10年银行分期
三公园(500米)
30万平方米福神岗公园
15万平方米文化公园
19万平方米龙阁山公园
两中心:(500米)
行政服务中心
10万平方米体育中心
四大商业配套:
万科城市生活广场600米
万达广场/汇景城800米
寮厦市场200米
祥鸿批发市场800米
四大名校:
小牛津外国语学校
艺园学校
卓越维港幼儿园
万科臻山悦幼儿园
便捷大交通:
200米莞太路、
800米环莞快速
R2线寮厦站、陈屋站1公里
3分钟上高速
8分钟到南城CBD
10分钟虎门高铁站TOD















昨晚喝酒了户型看着不大呀,我想要那种2米的阳台点赞(5)


已有 28 人领取
折扣优惠将与您的手机号绑定

微信扫一扫,预约更快更方便