



















东莞凤岗雁田小产权房《天鹅湖畔花园》集体大红本,临深超级大盘火爆来袭,深圳里的凤岗,绝佳地段,三面临深,有山有湖,天然氧吧,南北通透。
双城配套,尽享繁华。与七百米地标摩天高楼为邻,开车10分钟到龙岗大运,项目自带大型购物中心,各项配套成熟 生活无忧!
楼盘位置图:

在售户型:
一房:50m²
二房:80m²
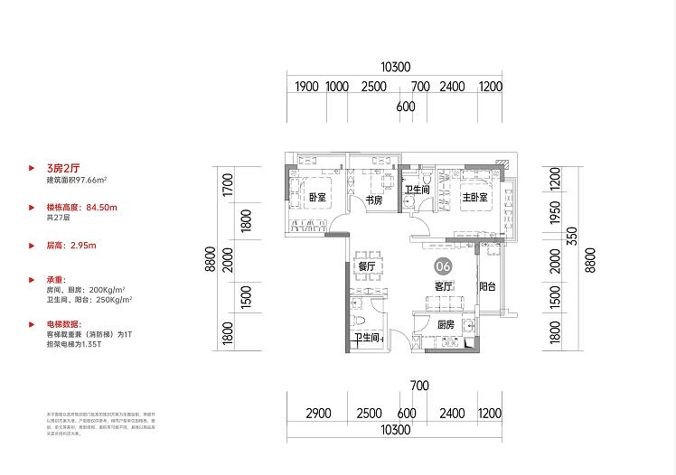
三房:97㎡
均价:13000元/m²
付款:首付3成 分期10年
项目基础信息:
183.89万㎡建面产城分三期开发,总建面约183.89万㎡,占地面积约37.57万㎡,一期占地约8.33万㎡,二期占地约17.47万㎡。
一期建面约39万㎡,二期建面约60万㎡ ,二期业态:15栋4层独栋总部楼,3栋厂房17-18层,2栋全时办公楼15-24层,19栋半山公馆3层,5栋人才配套宿舍27-32层;
户型:总层:31层
层高:3米(平层)
梯户比:4梯12户
交房:精装修(带空调)
燃气:通燃气
物业:京东物业
物业费:2.85元/m²
水电:3.42元/1.05元
年限:40年(18年-58年)
交付:2024年交房




















当年情你好,请问下是期房还是现房点赞(5)


已有 28 人领取
折扣优惠将与您的手机号绑定

微信扫一扫,预约更快更方便